一、墙面石材施工要点

1、采用比色法对石材的颜色进行挑选分类玻璃隔断施工工艺,安装在同一面的石材颜色一致。

2、施工前认真按照图纸尺寸,核对结构施工的实际尺寸,以及分段分块,单线和拉线要直,吊线校正要勤快。

3、外饰面施工完成后,对于易破损部分的棱角处要钉护角保护,以免其他工种操作时碰坏石材。

玻璃隔断施工工艺_隔断玻璃工艺施工方案_隔断玻璃工艺施工流程

玻璃隔断施工工艺_隔断玻璃工艺施工方案_隔断玻璃工艺施工流程

二、墙面石材施工工艺要点

1、灌浆法施工工艺

玻璃隔断施工工艺_隔断玻璃工艺施工流程_隔断玻璃工艺施工方案

(1)墙面石材采用湿挂灌浆工艺,采用铜丝连接。分次灌浆,第一次不得超过石板高度的三分之一,待砂浆初凝后进行第二次灌浆,高度为石板的二分之一,第三层灌浆至低于石板上口5厘米处为止。

隔断玻璃工艺施工流程_隔断玻璃工艺施工方案_玻璃隔断施工工艺

(2)深色石材采用32.5Mpa普通硅酸盐水泥混合中砂或粗砂,(含泥量不大于3%)1:3配比;浅色系列石材采用32.5Mpa白水泥砂浆掺白石屑1:3配比。

2、干挂法施工工艺

隔断玻璃工艺施工方案_玻璃隔断施工工艺_隔断玻璃工艺施工流程

(1)所有型钢规格符合国家标准,热镀锌处理,焊接部位作防锈处理。不锈钢石材挂件钢号为202以上,或根据项目实际需要采用304钢号连接配件。

隔断玻璃工艺施工方案_玻璃隔断施工工艺_隔断玻璃工艺施工流程

隔断玻璃工艺施工方案_玻璃隔断施工工艺_隔断玻璃工艺施工流程

(2)石材厚度要求在20mm以上,高以内的墙体,竖向需采用5#槽钢,横向采用型角钢,间距根据石材的横缝排版确定,高以上的墙体,竖向需采用8#槽钢,横向采型角钢,间距根据石材的恒丰排版确定。

3、胶粘剂粘贴施工工艺

隔断玻璃工艺施工流程_玻璃隔断施工工艺_隔断玻璃工艺施工方案

木基层面粘贴石材工艺,适用于小面积、小块面材料施工范围(如文化石、装饰线、踢脚线),须用AB胶结合不锈钢自攻螺钉粘接固定,石材背面应挖成倒八字型孔玻璃隔断施工工艺,要做好防腐处理。

三、墙面石材细部收口要点

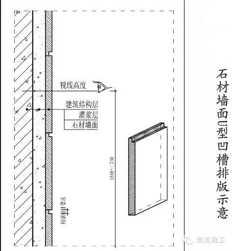
1、石材墙面横缝,需根据人体的视线高度排布,施工时需厂家定加工,现场安装。

玻璃隔断施工工艺_隔断玻璃工艺施工流程_隔断玻璃工艺施工方案

2、墙面石材阳角收口均需45度拼接对角处理;待墙面石材全部铺贴完成后,须调制与石材同色的云石胶作勾缝处理,勾缝必须严密。

玻璃隔断施工工艺_隔断玻璃工艺施工方案_隔断玻璃工艺施工流程

3、石材墙面有横缝时(如V字缝,凹槽)时,阴角收口均需45度(角度稍小于45度,以利于拼接)拼接对角处理,应在工厂内加工完成。

玻璃隔断施工工艺_隔断玻璃工艺施工方案_隔断玻璃工艺施工流程

4、石材检修门:

隔断玻璃工艺施工方案_隔断玻璃工艺施工流程_玻璃隔断施工工艺

(1)石材暗门需采用热镀锌角刚,角钢大小及滚珠轴承大小根据门体的自重选定,焊接部位作防锈处理。

(2)石材干挂或安装,门边、框边切割面需抛光处理,钢架面采用防潮板包封。

(3)门与框之间安装限位链。

5、钢架台盆安装注意防锈等的处理:

(1)台盆铁甲须采用国标镀锌角钢,焊接处做防锈处理。

(2)台盆固定于固定构件上,固定构建与石材垫块用不锈钢或镀锌螺栓固定,垫块背面及台面粘结部位需经打毛处理用大理石胶粘接固定,台盆与固定构件连接处需用橡皮垫块,台盆与台面板下沿口用耐候胶密封。

6、台下柜台盆安装:台盆固定于固定构件上,固定构建与台下柜基层面8mm对穿螺丝固定,台盆与固定构件连接处用橡皮垫块,台盆与台面板下沿口用耐候胶密封。

玻璃隔断施工工艺_隔断玻璃工艺施工方案_隔断玻璃工艺施工流程

7、卫生间玻璃隔断与大理石墙面交接施工节点:

(1)淋浴房玻璃安装前,在两块石材间预埋“U”形不锈钢槽,用AB胶或云石胶粘结固定,把玻璃嵌入槽内,接缝处打透明防霉硅胶。

(2)U型不锈钢内径规格宽比玻璃厚度大2-4mm,深为15-18mm,壁厚不小于1.2mm。

(3)玻璃需四周磨边处理。

隔断玻璃工艺施工流程_隔断玻璃工艺施工方案_玻璃隔断施工工艺

8、淋浴房门预埋件安装:在石材安装前预埋铁杆,直接与墙体固定(砂加气墙需采用对穿螺丝杆加固)。

隔断玻璃工艺施工流程_隔断玻璃工艺施工方案_玻璃隔断施工工艺

9、卫生间壁龛施工:高度按墙面石材或瓷砖排版而定,高度应于横缝跟平,并做与横缝相同的倒角或凹槽。

隔断玻璃工艺施工方案_玻璃隔断施工工艺_隔断玻璃工艺施工流程

隔断玻璃工艺施工方案_玻璃隔断施工工艺_隔断玻璃工艺施工流程

10、浴缸石材收口施工:

隔断玻璃工艺施工方案_隔断玻璃工艺施工流程_玻璃隔断施工工艺

(1)浴缸与石材相接部位按浴缸边缘压石材的做法施工,石材台面按整块石材根据浴缸尺寸切割镂空磨边,工厂加工完成后现场安装,石材与浴缸交界处用耐候胶收口。

隔断玻璃工艺施工方案_隔断玻璃工艺施工流程_玻璃隔断施工工艺

(2)浴缸周边石材部位作4*4镀锌角钢支撑架,钢丝网泥沙浆粉刷后再安装石材,并留设石材检修暗门,检修门规格及方向需符合检修要求。

隔断玻璃工艺施工流程_玻璃隔断施工工艺_隔断玻璃工艺施工方案

11、全窗台柜橱台面翻边施工:人造石台面板与窗台部位高差50-70mm,为保证整体美观效果,人造石台面挡水应跟通至窗框边。

隔断玻璃工艺施工方案_隔断玻璃工艺施工流程_玻璃隔断施工工艺

12、高窗台橱柜台面翻边施工:人造石台面板与窗台部位高差大于80mm,人造石台面挡水外凸,窗台边用人造石或厨房面砖跟通。

隔断玻璃工艺施工流程_玻璃隔断施工工艺_隔断玻璃工艺施工方案

13、低窗台橱柜台面翻遍施工:

玻璃隔断施工工艺_隔断玻璃工艺施工方案_隔断玻璃工艺施工流程

(1)窗台部位低于人造石台面板,人造石台面挡水做出后需跟至窗边或预留。

(2)不小于100mm的操作空间后跟通至窗台面。

本文转自筑龙施工(),在此表示感谢。

点击【阅读原文】,立即体验金地集团、鲁能、禹洲都在用的工程管理神器↓↓↓

隔断玻璃工艺施工方案_玻璃隔断施工工艺_隔断玻璃工艺施工流程

发表回复

您的邮箱地址不会被公开。 必填项已用 * 标注