改造 · 宅

专注居室空间改造整体解决方案

开间进深什么意思_进深开间什么意思_进深和开间的定义

最近改造宅接手了一个很有意思的项目——不同于往常单纯的自住需求,这间位于大连火车站后身的南向阳光房,很有可能在不久的将来以民宿的形式接待来自全国各地的游客。房主是一对蛮有个性的小情侣和一条憨萌的古牧,男生DAVID是自由撰稿人,女生橙子酱是DIY手作爱好者,经营了一家淘宝店。

开间进深什么意思_进深开间什么意思_进深和开间的定义

改造宅实地拍摄图

基本信息

房屋位置:景润小区新康巷60号

房屋面积:120㎡

房屋户型:(原设计)两室一厅一卫(改造后)三室一厅一卫

常住人口:年轻情侣 + 一枚汪星人

房屋特点:大开间南向,采光好,有阁楼

装修需求:自由职业,在家时间较长,希望提升居住舒适度,后期此房会做民宿用

装修预算:20w(包含设计费+施工费+主材+家具家电+软装饰品)

整体构思

1.利用半墙隔断将客厅一分为二,增加半开放多功能榻榻米房间,整体格局由两室改为三室。

2.女主人衣物比较多,所以主卧增设衣帽间,后期也可以为民宿提供储物功能。优化次卧功能区。

3.全屋地暖,更换了门窗,全面提升房屋的居住品质。

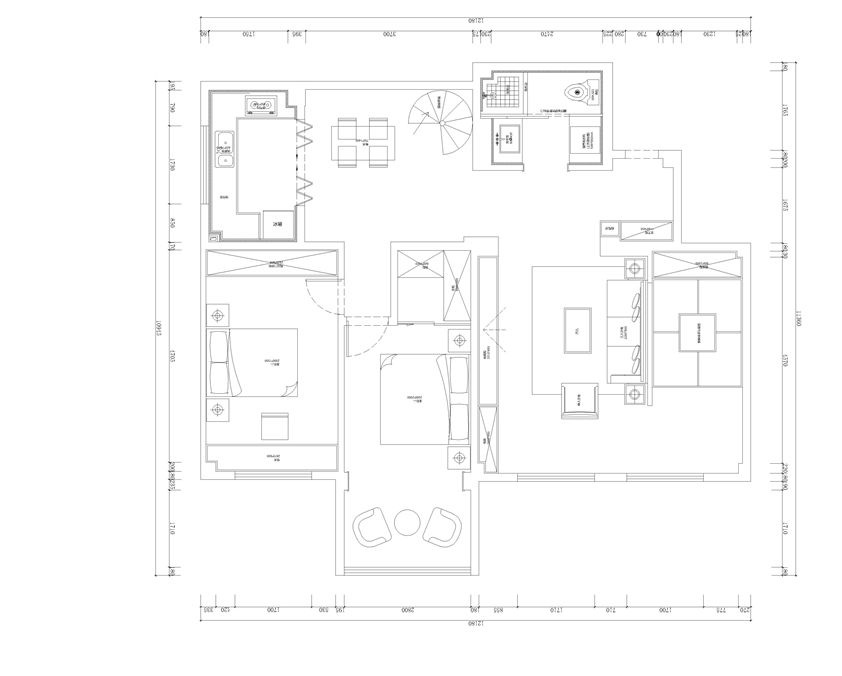
户型图:原始vs改造后

进深开间什么意思_开间进深什么意思_进深和开间的定义

改造前一层平面图

进深开间什么意思_进深和开间的定义_开间进深什么意思

改造后一层平面图

这个户型的优势是南向客厅非常大,有四扇窗户用来采光,其中两扇在客厅,两扇分别在两个卧室。房子整体格局还是不错的,每天的日照时间非常充足,无论是晨起早茶还是午后发呆都非常合适再加上业主二人本身也喜欢极简主义的设计。

DAVID和橙子酱不希望两间卧室做过于繁琐的装饰,所以我们决定将原来进深过长的客厅进行分割,利用半墙隔断将客厅一分为二,增加半开放多功能榻榻米房间,一方面增加储物空间,另一方面集休闲,休息,娱乐于一体,实现功能多元化。

进深和开间的定义_进深开间什么意思_开间进深什么意思

二层的阁楼主要做柜以及一个备用卧室,增加储物空间

01

一分为二的客厅

改造前的客厅:

改造前是两间南向的卧室and一间开间超级宽阔的大客厅。客厅面积虽然大,但是很多面积都浪费掉了。

进深和开间的定义_开间进深什么意思_进深开间什么意思

改造前客厅

改造后的客厅 + 半开放榻榻米:

整屋装修风格是简约的北欧风,原木色与白色打底,缀以几株鲜亮的绿植,给人宁静清新的感觉。柔软的米灰色亚麻材质沙发,低调不张扬,高低不同的圆形小几组合成茶几,更有层次感,配以奶茶色的短毛珊瑚绒地毯,使整个客厅更具满满的居家气氛。

棚顶挑高与阁楼顶取齐,用纤细的黑色金属扶手做搭配开间进深什么意思,增强顶层空间的通透感。客厅配投影仪开间进深什么意思,以后成为了民宿,来自天南海北的朋友们一起看电影,想想都很幸福。

进深和开间的定义_进深开间什么意思_开间进深什么意思

沙发背景墙后就是榻榻米多功能屋,直接做了半敞开式,与楼梯和阁楼扶手同样材质的纤细黑色金属玻璃框,增强榻榻米区的采光。三组玻璃与三人位沙发居中对应,倒像是INS风咖啡卡座。

进深开间什么意思_开间进深什么意思_进深和开间的定义

进深开间什么意思_进深和开间的定义_开间进深什么意思

改造后榻榻米区域

02

增加衣帽间的主卧

改造前的主卧:

之前装修可以说毫无设计感可言,与刚改之后遗留下来做出租房的老屋一样,笨拙的床头,没有质感的实木地板,简易衣柜,还有上个世纪风格的挂饰。

开间进深什么意思_进深开间什么意思_进深和开间的定义

改造后的主卧:

依照房主的想法选了简约的黑色系实木床头,采用了更纤细的金属圆形小几代替床头柜。由于主卧面积较大。在床边设立阅读区,配上符合人体工程学的舒适躺椅,和精致纤长的立式台灯,相信夜幕降临时的晚读,会别有风趣。

开间进深什么意思_进深和开间的定义_进深开间什么意思

设计师巧妙的将衣帽间嵌入墙内,使主卧空间更平整利落。衣帽间外外设金属框架与毛玻璃的移门,开门可直接步入其内。

开间进深什么意思_进深开间什么意思_进深和开间的定义

03

一切从简的次卧

改造前的次卧:

同主卧一样,次卧依然是老旧的出租屋风格,所有的家具都笨重且简易,毫无风格可言。由于仅有两人居住,这次改造房主希望将工作区设立在次卧。

进深和开间的定义_进深开间什么意思_开间进深什么意思

改造后的次卧:

窗帘采用半帘,整个窗台使用实木多层板打造一个超长的工作台,由于考虑到之后会改为民宿,没有在工作台下设置太多的储物空间,统一将储物空间归置到客厅和阁楼。床品与家具依旧是精致纤细的风格。

进深和开间的定义_开间进深什么意思_进深开间什么意思

04

扩大视野的餐厅

改造前的餐厅:

地板陈旧破败,展示柜老气横秋......

进深开间什么意思_开间进深什么意思_进深和开间的定义

改造后的餐厅:

由于餐区上有阁楼部分,举架较低。拆除整面展示柜,将餐区整体面积扩大不少,简约的原木色餐桌可以直接贴墙,空间更显敞亮。配四把精致的皮面坐垫小椅子,非用餐时间可以纳入桌下,尽肯能保证餐区的空间感。

进深开间什么意思_开间进深什么意思_进深和开间的定义

开间进深什么意思_进深和开间的定义_进深开间什么意思

05

必备的干湿分离

改造前的卫生间:

浴室柜憨大不实用,淋浴区没有明显分割,没做到干湿分离。

改造后的卫生间:

马桶换了方向后,节省出空间配置了简约的淋浴房,实现干湿分离。原木色长条形洗手台搭配镜柜,可将杂物瞬间隐形,缩短浴室柜的进深后,洗衣机也搬进了卫生间内。黑白色系的瓷砖显得卫生间格外整洁干净。

进深和开间的定义_进深开间什么意思_开间进深什么意思

进深和开间的定义_开间进深什么意思_进深开间什么意思

06

动线合理的厨房

改造前的厨房:

洗菜盆位置与烟机位置不合适,空间较大但没能合理利用。

进深和开间的定义_开间进深什么意思_进深开间什么意思

改造后的厨房:

由于厨房的空间较大,我们大胆的采用了黑色实木贴面板材质的橱柜,配以黑白拼花的墙砖,高级感与时尚感UP了好几个等级。调换了洗菜盆与烟机的位置,使备餐的流程更顺畅,空出U字型的一边留做西厨。厨房做玻璃滑门,一方面增加厨房密闭性,另一方面不影响餐厅采光。

进深和开间的定义_进深开间什么意思_开间进深什么意思

进深开间什么意思_进深和开间的定义_开间进深什么意思

07

玄关不可忽略

改造后的门厅:

入户左手做了与玄关柜同材质的白色实木贴面板的假柜门,隐藏地暖分水器,并且顺应连接玄关柜,使玄关形成一个整体。

进深开间什么意思_开间进深什么意思_进深和开间的定义

08

小阁楼也有用

阁楼:

进深开间什么意思_开间进深什么意思_进深和开间的定义

改造之后,DAVID,橙子酱还有大毛毛如愿以偿的GET了一间超大全方位阳光房,想到会有这样一所明媚的房间用来做民宿,真的很期待在旅途中相遇!

如果你对你的家有任何疑惑

欢迎联系勾搭改造宅~

发表回复

您的邮箱地址不会被公开。 必填项已用 * 标注